【2025年版】検図をAIにさせることは可能?ChatGPTにお願いしてみた!
2025.11.15

2022年にChatGPTがリリースされてから、AIは多くの人にとって一気に身近なものになりました。
プログラムのコードを書き、画像や文章を作成できる生成AI。設計者にとって気になるのは「検図をAIにさせることはできるか?」という点です。
本記事では、ChatGPTを使って実際に検図をさせてみました。この記事を読むことで、AIがどこまで検図ができるか、どこまで図面を読み取ることができるかがわかります。
「最近話題の生成AIで、検図はできるのだろうか・・・」
「検図をAIにさせて出図前の寸法抜けを無くしたい・・・」
このように考えている設計会社の社長さんや機械設計者、CADオペレーターなど、図面に関わる方にとって興味深い記事になると思います。ぜひ、最後まで読んでみてください。
目次
AIによる検図の可能性:現状と課題
機械設計では、図面を加工屋さんに出す前に図面の不備をチェックします。
・寸法漏れがないか
・表面処理などの注記漏れがないか
・適切な公差が入っているか
といった項目を第三者が確認し、設計意図の抜け、漏れがないか確認する工程を検図と言います。
現状は、上司や先輩・ベテラン社員による人手で検図しています。機械設計の仕事は、図面を書いて加工メーカーに出図する直前が慌ただしいです。現役設計者である筆者としては、検図に十分な時間が取れないことに課題を感じています。
そんな時は、AIが検図をやってくれたらなぁ、と思います。退社前に図面データをAIに読み込ませて、次の日出社したときには検図が全部終わってすぐ修正に入れる、となれば理想です。
現状、AIが図面管理業務でできること
現状でも、AIを使った図面管理業務ツールは存在します。中にはAIを使った図面の整合性チェックツールもあります。下記の記事でAIが図面管理業務(OCRによる文字起こしや類似図面検索など)でできることを紹介しました。
検証に使用した生成AI:ChatGPT-5
検証に使用した生成AIはChatGPTで、モデルはGPT-5(2025年10月時点での最新モデル)を利用しました。
また、設定から「すべての人のためにモデルを改善する」をOFFにしました。こうすることで、入力したデータをAIに学習させないようにします。

検図をするための生成AI用プロンプト
検図をAIにさせるために、次のプロンプトを用いました。プロンプトと一緒に、図面データの画像を添付しました。
#role
あなたは製造業の設計現場で20年以上設計・検図を行っており、特に図面のチェック(検図)を得意としています。
#instructions
添付の図面を注意深く確認してください。そして、図面のチェック(検図)を行ってください。
誤りや不備があれば該当箇所を指摘し、修正してください。 「この修正が無いと加工できない」という致命的な不備を指摘してください。
AIによる検図①:丸物フランジ
次のような丸物フランジを検図させてみました。

AIに検図で指摘してほしい点は、次の2点です。
1.Φ6.6穴の位置:ピッチ円直径が書かれていないので、寸法漏れを指摘してほしい
2.表面粗さ:材料がSS400なので丸物の切削を想定している。表面粗さ記号が指定されていないことも指摘してほしい
前述したプロンプトで生成AIに指示を与えると、次の結果が出ました。
了解。加工観点でこのままでは製作に進めない=致命的な不備は次の2点です。
1.ボルト穴の位置寸法(PCD)が無い
注記は「4×φ6.6」のみで、中心からの半径(PCD:ピッチ円直径)が未記入。図中の一点鎖線らしき円は描かれていますが寸法値が無いため、穴の半径位置が決められず加工不可です。
→ 修正:「4-φ6.6 貫通(等配90°,PCD φXXX)」のようにPCD値を明記(例:PCD φ120 など)。併せて等配角も入れる。
2.穴の貫通/下穴・タップの別が未指示
φ6.6 が貫通なのか、下穴+タップなのか、座ぐり有無が不明。工程・工具が確定できず、製作判断ができません。
→ 修正:貫通なら「4-φ6.6 貫通」。ねじなら「4-M6 ねじ深さ○(下穴φ5.0)」「座ぐり寸法」等を明記。
(筆者コメント)
ボルト穴のP.C.D寸法漏れはよく指摘できました。
穴については「Φ6.6」の後ろに何も書かない場合は貫通穴になります。ここはΦ6.6の貫通穴であることを認識してほしかったです。
また、表面粗さ指定がないことの指摘はありませんでした。
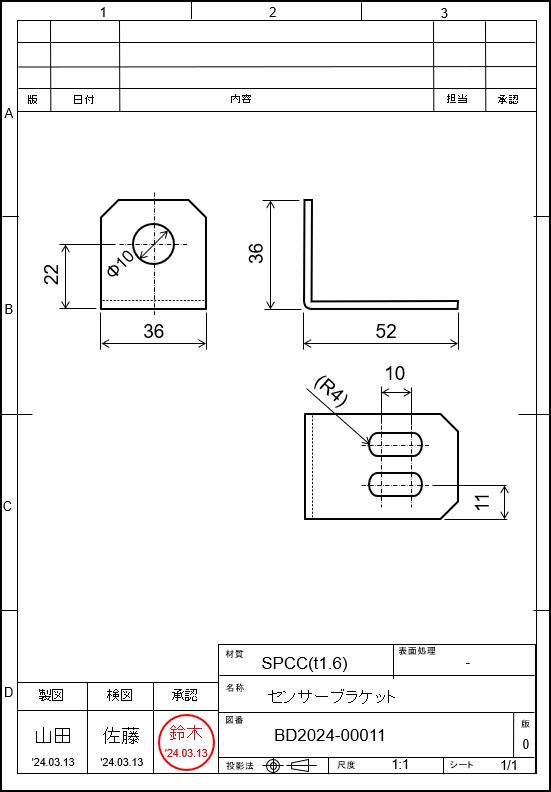
AIによる検図②:板金部品
次のような板金部品を検図させてみました。

AIに検図で指摘してほしい点は、次の5点です。
1.長穴の短辺の寸法漏れ:角部に(R4)の表記はあるものの、8の寸法が抜けている
2.長穴同士の間隔の寸法漏れ
3.長穴の水平方向の寸法漏れ
4.板金部曲げ半径の寸法漏れ
5.面取りの指示漏れ
前述したプロンプトで生成AIに指示を与えると、次の結果が出ました。
了解。添付の「センサーブラケット」図を確認しました。
このままでは製作工程を決められない=致命的な不備は下記です(重要度順)。
致命的な不備(この修正が無いと加工できない)
1.長穴(2か所)の“サイズ”が未指示
図中の「10」は何の寸法か不明(穴幅?ピッチ?)。長穴は通常、幅×長さ(端部Rを含む)で指示します。
→ 修正例:2-長穴 6×18(端部R3) など、幅・長さ・端部Rを明記。
2.長穴の“位置”が未定義
長穴の中心位置が基準辺から何mmかの寸法が無い。現状は中心間の「10」らしき寸法のみで、左右・上下の基準からの座標が無く加工不可。
→ 修正例:基準面(例:曲げ内面をA、下辺をB、左辺をC)を設定し、
長穴中心 X=○(C基準)、Y=○(B基準)、中心間ピッチも併記。
3.φ10丸穴の“位置”が未定義
φ10の径しか無く、中心のX・Y寸法が無い(上左図)。どの端面から何mmかが不明で穴加工ができません。
→ 修正例:穴中心 X=○(左/右基準)、Y=○(下/上基準) を追加。
4.曲げ条件の欠落(展開長が決められない)
側面図に 36、52 の出来上がり寸法はあるが、内側曲げ半径(Ri)/曲げ角度/曲げ基準(外側基準か内側基準か)が無く、展開寸法が確定できない。
→ 修正例:曲げ角度:90°、内R:Ri=1.6(=板厚相当)、
寸法は出来上がり外形基準、展開は社内係数(K=0.33) などを注記。
5.外形の決定寸法が不足
下右図の母材外形(幅・高さ)や面取り/面Rの量が未定義。右上の面取り「11」も角度・もう一辺が不明で形状確定不可。
→ 修正例:外形 幅×高さ を記入し、面取りは C11×45° など量と角度で明示。四隅Rなら 四隅R4 のように適用範囲を明確化。
追補(優先度は下がるが早めに整備推奨)
・基準(データム)設定:曲げ内面をA、長手方向中心線をBなど。穴・長穴の位置度で管理するなら ⌀0.3 A|B 等。
・加工指示:穴加工は曲げ前/全面バリ取り など。
・材質表記:SPCC(JIS G 3141),t1.6 のように規格も併記。
まとめ
・長穴のサイズ(幅×長さ×端部R)、長穴・φ10の中心位置(基準からのX・Y)、曲げ条件(内R・基準・角度)、外形・面取り量の確定 —— この4点が欠けており、現状は加工不可です。
上記を追記すれば、展開・レーザー/タレパン・曲げまで工程が確定できます。
(筆者コメント)
長穴の寸法や位置が不十分であることは、何とか指摘がもらえました。また、板金の曲げ半径やC面取りが抜けていることも指摘がありました。
チェックしてほしいところは基本的にすべて指摘がありましたが、不要な指摘も多かったです。例えばΦ10の穴は垂直方向は下端から22、水平方向は36の真ん中(端から18)であることが図面に記載してあります。
AIによる検図③:シャフト
X(旧Twitter)では、製造業に携わる方たちが日々情報発信をしています。その中で注目を集めた発信が、加工サービス「meviy」の次のポストです。
返信や引用で多くの設計者、加工者の方が図面内の不備を指摘しています。人によってさまざまな指摘があって、設計者としても勉強になります。
次は、このポストの図面(メインシャフト)をAIに検図させてみました。
AIに検図で指摘してほしい点は、次の4点です。
1.M6タップの個数:(誤)6×M6→(正)8×M6
2.幾何公差:(誤)平行度→(正)直角度
3.表面粗さの向き:JISの製図規定では、正面または右から見た時に読める方向のみ
4.M30の完全ねじ部の長さ指定:段差ギリギリまではねじが切れず、不完全ねじ部が残る。
前述したプロンプトで生成AIに指示を与えると、次の結果が出ました。
了解です。図面を精読し、このままだと加工に進めない=致命的な不備を挙げます。いずれも現場で寸法が決められず工程が確定できません。
致命的な不備(要修正)
1.胴部(中央の長い円筒)の外径寸法が抜けています
フランジ肩(φ42)と右端部(φ35h7、φ20.6、ねじ M30×1.5)は記載がありますが、その間の主軸胴部の直径が未記入。旋盤加工で最も基本となる仕上げ径が不明のため製作不可。
→ 修正:胴部に φ○○(必要なら公差/粗さ) を付与し、必要なら基準Aに対する同軸度・円筒度を指定。
2.フランジのボルト穴配列が確定できない
正面図に「6×M6」はありますが、PCDが “65” とだけ記載で、φ記号や“PCD”の明示が無い。中心からの半径寸法にも読め、寸法解釈が揺れて位置が決められません。さらに、ねじ深さ(貫通か盲穴か)も未指示。
→ 修正:
- 6-M6 ねじ,PCD φ65,等配60° とPCDは「φ」付きで明示。
- ねじが貫通なら「貫通」、盲穴なら「ねじ深さ L=○」を追記。
3.キー溝の“軸方向長さ・位置”が未指示
右側の部分図で幅 6N9、深さ 3.5は分かりますが、キー溝の長さ(l)とどの端面から何mm始まり何mmで終わるかが不明。ブローチ/エンドミル加工の基準が取れません。
→ 修正:キー溝 6N9×l○(深さ3.5),右端面から○mm開始 など軸方向寸法を付与。端部の面取り/丸みが必要ならその量も追記。
4.M30×1.5 の“ねじ長さ”が曖昧
上部に「15」の寸法が見えますが、ねじ長さを示すのか、別の段差寸法なのか解釈が分かれる配置。ねじ取り付き(面取り/逃げR)も数値がありません。
→ 修正:M30×1.5-6g,ねじ長さ L=15 を明確な矢印で記入し、取付面取り C1.0 または ねじ逃げ(JIS溝)寸法 を数値で指示。
上記4点のいずれかが欠けると寸法が一意に決まらず段取りができません。
まずは①胴部径、②PCDとねじ深さ、③キー溝の軸方向長さ(開始基準と終端)、④ねじ長さの明記――を最優先で追記してください。
(筆者コメント)
全体的に指摘が的外れで、指摘してほしい箇所の修正はありませんでした。
指摘の「1.胴部(中央の長い円筒)の外形寸法」は、Φ35h7の寸法が入っていますので、寸法抜けはありません。
「2.フランジのボルト穴配列」は、穴の個数が8個であることを指摘してほしかったです。
「3.キー溝の”軸方向長さ・位置”」は、長さ15の寸法が入っています。
「4.M30×1.5の”ねじ長さ”」は、長さ19の寸法が入っています。不完全ねじ部についての指摘はありませんでした。
検証結果:検図を生成AIにさせることの限界
ChatGPTによる検図は、簡単な形状の寸法抜けは指摘してくれました。しかし複雑な形状になると、形状に記された寸法を読み解くことが難しかったのか、適切な指摘ができませんでした。
ChatGPTの性能は東大の数学入試問題をも合格レベルの正答率をはじき出すという検証結果1もありますが、図面の検図能力はまだ不十分と言えそうです。
製造業の場合、図面はその企業のノウハウが詰まっている情報と言えます。公開される図面データは少なく、AIモデルに学習させるデータ量が少ないという実情があると考えられます。
また、今回は画像データの読み込みだったので、文字情報付きのPDFデータなどAIが認識しやすいデータ形式にするとまた違った結果になるのかもしれません。
まとめ
今回は、検図をAI(ChatGPT-5)にさせてみた結果を紹介しました。
今回の検証で明らかになったのは、2025年10月時点では、生成AI単独での検図はまだ難しいということです。形状が複雑になると、寸法を上手く認識できず、指摘も的外れなものになりました。
本来、AIにとって形状や数字を認識して論理的な判断をするのは、どちらかというと得意な領域のはずです。現状は図面データの学習量が乏しいため、図面を読み取る能力が不足していると筆者は考えています。
将来的に大量の図面データを学習した『検図AI』が開発されれば、AIによる検図によって凡ミスが減り、加工のやり直しや出図後の修正を防げるでしょう。
- 出典:東洋経済ONLINE「「ChatGPTが東大入試解いてみた」驚く結果の中身」 ↩︎


